Real estate Anthony Builders, Inc.
"Custom Home Builders"

Serving Bethlehem and the Lehigh Valley

European Home Designs

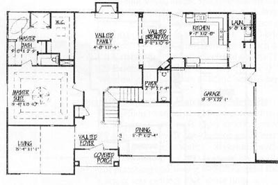
THE CALGARY
by

Frank Betz Associates, Inc.

2,554 square feet of living space
4 bedrooms, 2.5 baths, and a 2 car garage
$355,100 - $380,600

The Calgary

Floor Plans

1st Floor
2nd Floor
The Calgary layout
The Calgary layout

Return to Frank Betz Designs

Click here to Visit The Anthony Builders Community Guide!

Click here to request more information from Anthony Builders


Home · Virtual Tours · Community Guide · The Homebuilding Process · European Design
Home Features and Specifications · What's New! · About Us · Contact Us

Anthony Builders, Incorporated
434 Clearfield Street
Freemansburg, PA 18017
610-865-9314