Real estate Anthony Builders, Inc.
"Custom Home Builders"

Serving Bethlehem and the Lehigh Valley

European Home Designs

THE LASALLE
by

Frank Betz Associates, Inc.

2,493 square feet of living space
4 bedrooms, 2.5 baths, and a 2 car garage
$346,600 - $371,500

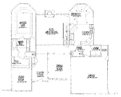
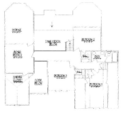
The LaSalle

Floor Plans

1st Floor
2nd Floor
The Chadwick layout
The Chadwick layout
Return to Frank Betz Designs

Click here to Visit The Anthony Builders Community Guide!

Click here to request more information from Anthony Builders


Home · Virtual Tours · Community Guide · The Homebuilding Process · European Design
Home Features and Specifications · What's New! · About Us · Contact Us

Anthony Builders, Incorporated
434 Clearfield Street
Freemansburg, PA 18017
610-865-9314