Real estate Anthony Builders, Inc.
"Custom Home Builders"

Serving Bethlehem and the Lehigh Valley

European Home Designs

THE SHELBY
by

Frank Betz Associates, Inc.

2,940 square feet of living space
4 bedrooms, 3.5 baths, and a 2 car garage
$408,700 - $438,100

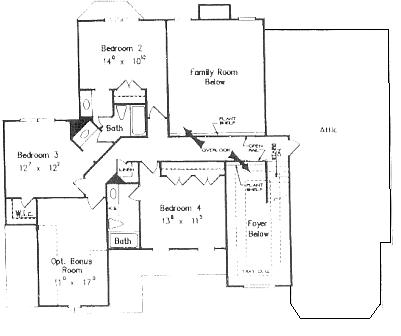
The Shelby

Floor Plans

1st Floor
2nd Floor
The Shelby layout
The Shelby layout

Return to Frank Betz Designs

Click here to Visit The Anthony Builders Community Guide!

Click here to request more information from Anthony Builders


Home · Virtual Tours · Community Guide · The Homebuilding Process · European Design
Home Features and Specifications · What's New! · About Us · Contact Us

Anthony Builders, Incorporated
434 Clearfield Street
Freemansburg, PA 18017
610-865-9314