Main Header

Woodcrest Estates - "A" Series Floor Plans (1st Floor Owner Suite)

New Homes in Chester County, PA
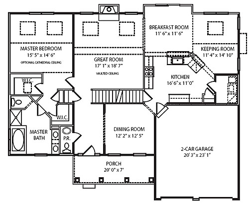
First Floor

New Home Construction
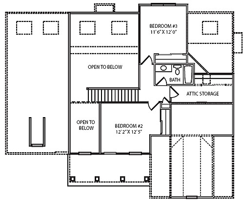
Second Floor

"A" Series Elevations


Call 610-970-9191 or
click here to contact us about Woodcrest Estates!

***Prices and Features are Subject to Change without Notice***

Community Homepage · Community Fact Sheet · Pricing
Standard Features · Community Plot Plan · Map and Directions

About MAH · Our Communities · Finance · Land · Rental Properties · In The News · Photo Gallery · Contact Us · Realtors · For Our Homeowners · Home

Michael Anthony Homes - 800-898-0028