Woodcrest Estates - "S" Series Third Floor Plans

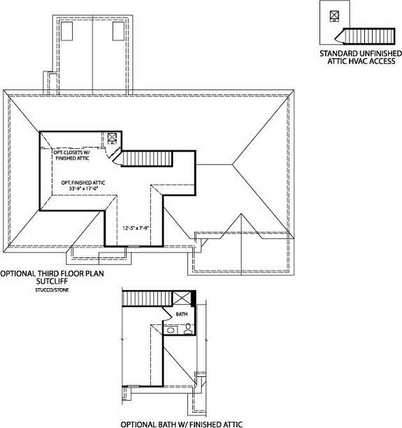
Third Floor Option - Sutcliff

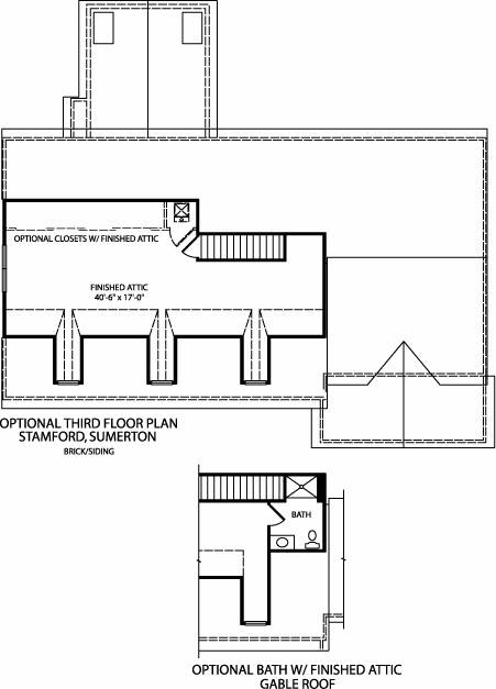
Third Floor Option - Stamford/Sumerton

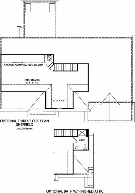
Third Floor Option - Sheffield
Elevations ·
First and Second Floor Plans ·
Options
Call 610-409-9900 or
click here to contact us about Woodcrest Estates!
***Prices and Features are Subject to Change without Notice***
Community Homepage ·
Community Fact Sheet ·
Pricing
Standard Features ·
Community Plot Plan ·
Map and Directions