
"Established in 1929"
609 East Baltimore Pike
P.O. Box 926, Media, PA 19063
Ph. · Fax 610.565.7603 TOLL FREE
All information is deemed reliable but is not guaranteed.
Properties that are shown are subject to change, prior sale or withdrawal.
Neither listing brokers nor information providers shall be responsible for
any typographical errors, misinformation, or misprints, and shall be held
totally harmless.
Baird & Bird Realtor License #RB-022790-A
|

|


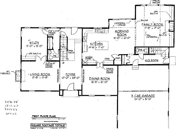
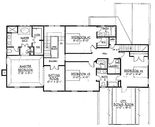
Floor Plans
Media, PA $715,000
New construction - Classic colonial on an acre of land, attention
to detail and great location. Stunning exterior design, interior features
formal LR/fp, study, formal DR, lg kit w/adjoining morning room, lg FR/fp,
mud room, 3-car garage. 2nd floor has lg MBR/MBA, walk-in his/hers closet,
spacious sitting room, 3 add'l BRS & 2 full baths PLUS a finished bonus
space for lots of storage. Bsmt is full and unfinished. Taxes to be
determined.
For more information....
If you have an interest in the property, or would like to speak with
us, please provide the following
information:
|