Marra Homes - New Home Builders in Delaware

For New Home Community information click here or call
Rob Young at (302) 984-4545

Model #2
4 Bedrooms, 3 1/2 Baths
New Castle County real estate
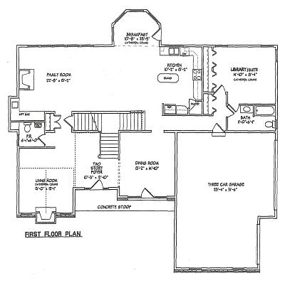
floor plan Family Room
22'8" x 15'2"
Living Room
13'0" x 15'1"
Dining Room
13'2" x 14'10"
Kitchen
10'2" x 15'2"
Breakfast Room
10'8" x 23'5"
Library
14'10" x 13'4"
3 Car Garage
23'4" x 31'6"
Additional Spaces
Powder Room
Bathroom
floor plan Master Bedroom
19'8" x 13'8"
Master Bathroom
10'10" x 16'0"
Bedroom #2
13'9" x 11'8"
Bedroom #3
13'2" x 15'0"
Bedroom #4
11'10" x 13'0"
Additional Spaces
4 Walk-In Closets
2 Bathrooms
Laundry
Attic Space
Loft/Balcony

If you would like more information about new home construction, please click here.

Index of Home Models


All information is deemed reliable but is not guaranteed. Properties that are shown are subject to change, prior sale or withdrawal. Neither listing brokers nor information providers shall be responsible for any typographical errors, misinformation, or misprints, and shall be held totally harmless.

Communities | Company Information | Quick Deliveries
Custom Homes | Philadelphia Region | Contact Us | Home