Marra Homes - New Home Builders in Delaware

For New Home Community information click here or call
Rob Young at (302) 984-4545

Model 805
Ranch
3 Bedrooms, 2 Baths
New Castle County real estate

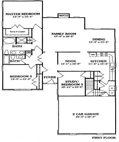
floor plan Family Room
17'0" x 18'0"
Dining Room
12'4" x 12'0"
Kitchen
11'0" x 15'0"
Breakfast Nook
12'1" x 10'0"
Master Bedroom
15'9" x 14'4"
Bedroom #2
13'5" x 13'0"
Study/Bedroom #3
10'11" x 13'0"
2 Car Garage
23'0" x 20'0"
Additional Spaces
Master Bath
Walk-In Closet
Laundry Room

If you would like more information about new home construction, please click here.

Index of Home Models


All information is deemed reliable but is not guaranteed. Properties that are shown are subject to change, prior sale or withdrawal. Neither listing brokers nor information providers shall be responsible for any typographical errors, misinformation, or misprints, and shall be held totally harmless.

Communities | Company Information | Quick Deliveries
Custom Homes | Philadelphia Region | Contact Us | Home