Marra Homes - New Home Builders in Delaware

For New Home Community information click here or call
Rob Young at (302) 984-4545

Model #170
3 Bedroom, 2 1/2 Baths, 2 Car Garage, Full Basement

New Castle County real estate
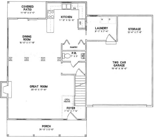
First floor plan 1st Floor

Great Room
20'0" x 17'8"
Dining Room
16'0" x 11'8"
Kitchen
11'8" x 16'8"
Laundry Room
9'1" x 7'4"
2 Car Garage
19'8" x 19'6"
Storage
10'4" x 7'8"
Additional Spaces
Powder Room
Front Porch
Covered Rear Patio

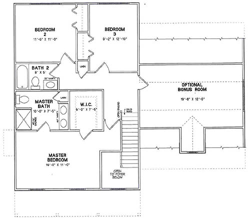
second floor plan 2nd Floor

Master Bedroom
16'0" x 11'0"
Master Bathroom
10'0" x 7'5"
Bedroom #2
11'6" x 11'0"
Bedroom #3
9'2" x 12'10"
Optional Bonus Room
19'8" x 12'0"
Additional Spaces
Walk-In Closet
Hall Bathroom

If you would like more information about new home construction, please click here.

Index of Home Models


All information is deemed reliable but is not guaranteed. Properties that are shown are subject to change, prior sale or withdrawal. Neither listing brokers nor information providers shall be responsible for any typographical errors, misinformation, or misprints, and shall be held totally harmless.

Communities | Company Information | Quick Deliveries
Custom Homes | Philadelphia Region | Contact Us | Home