Marra Homes - New Home Builders in Delaware

For New Home Community information click here or call
Rob Young at (302) 984-4545

Model #220
4 Bedroom, 2 1/2 Baths, 2 Car Garage, Finished Basement

New Castle County real estate
Elevation "A"
New Castle County real estate
Elevation "B"
First floor plan 1st Floor

Family Room
13'10" x 15'6"
Dining Room
10'8" x 13'2"
Kitchen
10'0" x 13'2"
Living Room
13'10" x 13'8"
2 Car Garage
20'0" x 29'0"
Additional Spaces
Powder Room
Porch
Optional Deck

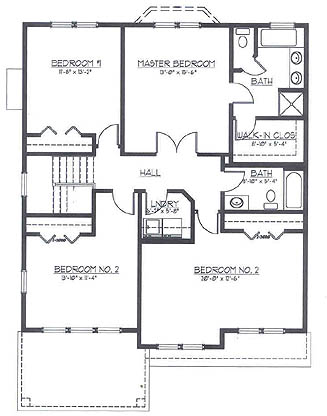
second floor plan 2nd Floor

Master Bedroom
13'0" x 15'6"
Sitting Room
12'6" x 13'8"
Bedroom #1
11'8" x 13'2"
Bedroom #2
13'10" x 11'4"
Bedroom #3
20'0" x 12'6"
Additional Spaces
Master Bath
Walk-In Closet
Bathroom
Laundry

If you would like more information about new home construction, please click here.

Index of Home Models


All information is deemed reliable but is not guaranteed. Properties that are shown are subject to change, prior sale or withdrawal. Neither listing brokers nor information providers shall be responsible for any typographical errors, misinformation, or misprints, and shall be held totally harmless.

Communities | Company Information | Quick Deliveries
Custom Homes | Philadelphia Region | Contact Us | Home