Marra Homes - New Home Builders in Delaware

For New Home Community information click here or call
Rob Young at (302) 984-4545

Model #230
4 Bedroom, 2 1/2 Baths, 2 Car Garage, Full Basement

New Castle County real estate
Elevation "A"
New Castle County real estate
Elevation "B"
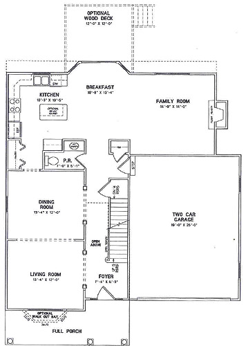
First floor plan 1st Floor

Family Room
14'9" x 14'0"
Dining Room
13'4" x 12'0"
Kitchen
10'3" x 13'5"
Breakfast Nook
10'8" x 13'4"
Living Room
13'4" x 12'0"
2 Car Garage
20'0" x 25'0"
Foyer
7'4" x 24'0"
Additional Spaces
Powder Room
Porch
Optional Deck

second floor plan 2nd Floor w/ 3 Bedrooms

Optional Expanded Master Bedroom
26'10" x 18'1"
Master Bathroom
8'10" x 14'0"
Bedroom #2
13'4" x 13'8"
Bedroom #3
19'0" x 12'6"
Nook
7'4" x 10'3"
Bathroom #2
5'6" x 9'9"
Additional Spaces
Walk-In Closet
Laundry

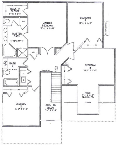
second floor plan 2nd Floor w/ 4 Bedrooms

Master Bedroom
13'11" x 15'10"
Master Bathroom
8'10" x 14'0"
Bedroom #2
13'4" x 13'8"
Bedroom #3
19'0" x 12'6"
Bedroom #4
12'8" x 16'0"
Nook
7'4" x 10'3"
Bathroom #2
5'6" x 9'9"
Additional Spaces
Walk-In Closet
Laundry

If you would like more information about new home construction, please click here.

Index of Home Models


All information is deemed reliable but is not guaranteed. Properties that are shown are subject to change, prior sale or withdrawal. Neither listing brokers nor information providers shall be responsible for any typographical errors, misinformation, or misprints, and shall be held totally harmless.

Communities | Company Information | Quick Deliveries
Custom Homes | Philadelphia Region | Contact Us | Home