Marra Homes - New Home Builders in Delaware

For New Home Community information click here or call
Rob Young at (302) 984-4545

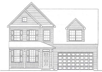
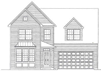
Model #240
4 Bedroom, 2 1/2 Baths, 2 Car Garage, Full Basement

New Castle County real estate
Elevation "A"
New Castle County real estate
Elevation "B"
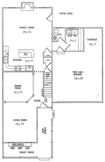
First floor plan 1st Floor

Family Room
19' x 14'
Dining Room
12' x 12'
Kitchen
15' x 11'
Living Room
16' x 13'
Mud Room
9' x 7'
2 Car Garage
20' x 20'
Additional Spaces
Storage in Garage
Powder Room
Front and Side Porch

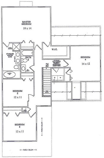
second floor plan 2nd Floor

Master Bedroom
19' x 14'
Bedroom #2
12' x 11'
Bedroom #3
13' x 11'
Bedroom #4
14' x 12'
Additional Spaces
Master Bathroom
Walk-In Closet
Bathroom
Laundry

If you would like more information about new home construction, please click here.

Index of Home Models


All information is deemed reliable but is not guaranteed. Properties that are shown are subject to change, prior sale or withdrawal. Neither listing brokers nor information providers shall be responsible for any typographical errors, misinformation, or misprints, and shall be held totally harmless.

Communities | Company Information | Quick Deliveries
Custom Homes | Philadelphia Region | Contact Us | Home