New Home Builders in Delaware

Marra Homes
New Home Builders in Delaware and Pennsylvania
Phone: 302-984-4545   Fax: 302-984-1595
Contact Form   email

Riverview Avenue
Twins
New Townhomes in Wilmington, New Castle County, Delaware (DE)

4 Bedrooms, 2 1/2 Baths, 2 Car Garage
Full Basement, Stone and Brick, 10' Ceilings

Priced in the mid $600's

Over the past thirty years, Joseph Marra has brought excellence in architectural design and quality construction unequaled in the Delaware area. The key to the company's success has been its uncompromising demand for quality and value in its finished product. In the quality of materials used, the highest levels of construction standards apply, with attention to customer satisfaction, you are assured of lasting value in your Marra home.

These are unique and masterfully crafted homes set amidst the natural beauty of "The Highlands", a well established community within the City of Wilmington. In this setting Marra Homes is creating two truly distinctive homes. When you choose a Marra home, you can be assured that it will provide a source of pride and satisfaction as well as an investment in quality for years to come.

Please call Rob Young at 302-984-4545 / 540-4111 or
click here to contact us for more info.

Community Plot Plan
Photo showing Riverview Avenue Twins townhomes

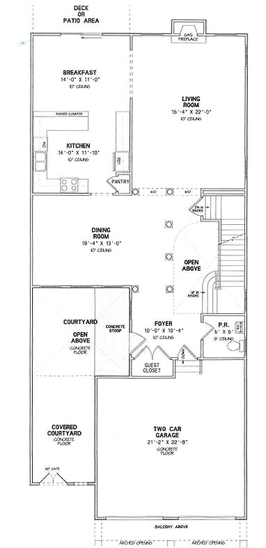
First Floor Plan
1st Floor - Units A and B
Two Car Garage - 21' 2" x 22' 8"
Foyer - 10' 0" x 10' 4"
Dining Room - 19' 4" x 13' 0"
Kitchen - 14' 0" x 11' 10"
Breakfast Area - 14' 0" x 11' 0"
Living Room - 16' 4" x 22' 0"
Powder Room - 6' 0" x 6'0"
Addtional Spaces: Courtyard,
Rear Deck or Patio

Click floor plan to enlarge

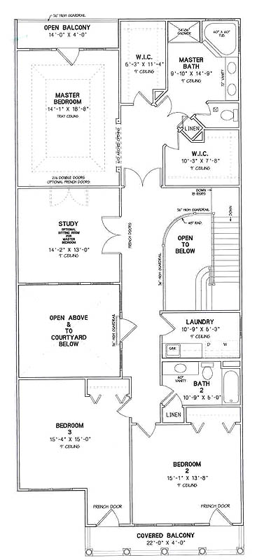
Second Floor Plan
2nd Floor - Units A and B
Master Bedroom - 14' 1" x 18' 8"
Master Bath - 9' 10" x 14' 9"
Walk-In Closet - 6' 3" x 11' 4"
Walk-In Closet - 10' 3" x 7' 8"
Study - 14' 2" x 13' 0"
Bedroom 2 - 15' 1" x 13' 8"
Bedroom 3 - 15' 4" x 15' 0"
Bathroom - 10' 9" x 6' 0"
Laundry - 10' 9" x 6' 3"
Covered Balcony - 22' 0" x 4' 0"

Click floor plan to enlarge

Standard Features

The features, design and specifications of each MARRA built home have been carefully chosen to incorporate MARRA HOMES pride of craftsmanship. This pride of craftsmanship means greater value now and in the future for each homebuyer.

ENERGY SAVING AND ELECTRICAL FEATURES

  • Gas hot air 94% high efficiency heating/cooling system
  • R-38 Insulation batts in attic ceilings
  • R-15 Insulation batts in all exterior living area walls
  • Insulated fiberglass front entry door with lead glass and wood stain
  • 75 gallon electric quick recovery energy miser water heater
  • 200 AMP electrical service, copper wiring throughout
  • 4 CAT 5 High Speed Telephone Lines
  • 4 RG-6 Cable Lines Satellite and Cable Ready
  • Door chimes
  • Smoke detectors - Hardwired
  • Custom lighting package
  • Energy efficient design, products and construction

INTERIOR DETAILING

  • Tile floor in all baths and laundry room
  • Wall-to-wall carpeting with Scotchgard stain release
  • Hardwood flooring as specified on all models
  • "Kwikset" Hardware throughout (lever style)
  • 5 1/4" Wood base trim in all rooms
  • Panel "Classique" interior doors
  • Closet doors with fully cased openings
  • 1/2" drywall, screwed and glued
  • Finished with two coats of latex paint with bright white trim
  • Finished and painted walls and ceilings in garage
  • Mirror plate on all vanities - 36" high x width of vanity
  • 42" Gas fireplace included in all models as shown with pre-cast mantel
  • 10' first floor ceilings and 9' second floor ceilings
  • Washer and dryer hook-up on second floor as shown with laundry tub
  • Ventilated closet shelving
  • Oak Railing and stair case

KITCHEN AND BATHROOMS

  • Dishwasher
  • Gas range with self-cleaning oven and built-in space saver microwave
  • Garbage disposal
  • Custom designed 42" oak cabinets in kitchen
  • Granite kitchen countertop with Double bowl stainless steel sink
  • White cultured marble vanity tops
  • Polished chrome fixtures
  • White elongated toilets
  • White Fiberglass tub with tile surround
  • Water line for ice maker
  • Five Piece Master Bath

CONSTRUCTION AND EXTERIOR FEATURES

  • Poured concrete foundation/9' high with 10 year dry basement warranty and large egress window
  • Steel beam construction with "TrusJoist" Premium Silent floor system
  • Vapor barrier concrete slab floors
  • Oversized 2-car garage with concrete driveway
  • Carriage House Design Garage door, with Opener
  • Andersen Insulated tilt-in windows with screens
  • Continuous ventilated soffit
  • Two exterior 110 volt weather-proof outlets
  • Two outside frost-free hose bibs
  • Vinyl low maintenance exteriors as shown
  • Access to attic
  • 10 year "QBW" home warranty and 1 year personal builder warranty
  • Architectural 30 year roof shingles with ridge vent system
  • Paver courtyards with metal gates
  • Aluminum gutters and downspouts
  • All OSB plywood exterior sheathing
  • 3/4" OSB plywood sub-flooring, tongue & groove (glued and nailed)
  • Sodded front, side and rear yards
  • Public sewer and water
  • Professionally designed landscape package
  • Weather resistant barrier wrap
  • Beaded, insulated siding with Tyvek
  • Stone and brick fronts

The builder reserves the right to change product, features, design and price without notice.

Home | Quick Deliveries | Communities | Agent Information
Custom Homes | Home Models | Philadelphia Region | Contact Us